проект
игровое пространство open space
стадия: концепция
место: г. Саров
площадь: 56 кв.м
год: 2021
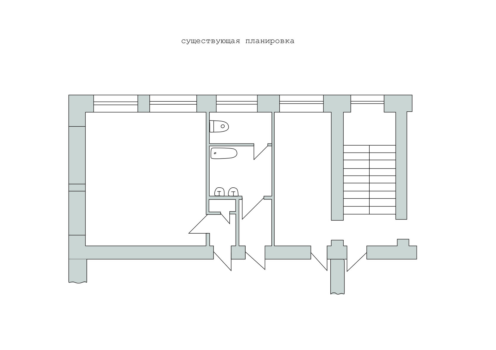
Большое светлое игровое пространство было получено в результате объединения нескольких помещений
"Использовать старое при создании нового"-
извлечь максимум выгоды и ресурса из того,
что было для того, что будет.
Мы решили сохранить чать стен объединяемых
помещений, чтобы новое пространство
стало аутентичным и неповторимым.
Материалы, использованные в проекте:
Создание интересного пространства, в
котором возможны различные сценарии игры,
перемещения, взаимодествия на различных
уровнях и изучение окружающего мира
с разной высоты, где ребенок- активный
инициатор действия и событи, а не просто
пользователь игр и сценариев, которые
заранее выбраны и предложены.
Преобразование пространства:
Активности, преобразованные в игровые элементы в пространстве
Небольшая площадь и большое количество разных активностей инициировали создание
мобильной мебели для того, чтобы пространство стало многофункциональным
Made on
Tilda